Escritório – Próximo da Escola do Rio
Escritório junto à Escola de Barcelos (escola do Rio).
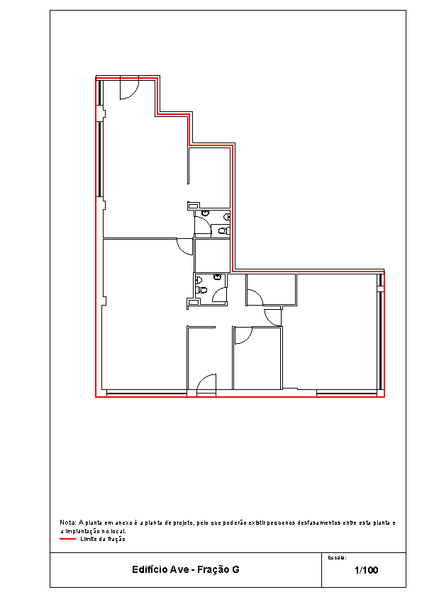
Com a área de 131,30m2. Dispõe de 5 salas, 1 hall, 1 recepção e 2 Wc’s. Espaço com muita luz natural.
Possui uma ótima localização, rua movimentada, excelentes acessos, próximo da escola, serviços públicos, etc.
Características
REF 186
164.10 m2 Área Útil total
1 WC
Classe Energética

Próximidades
Restaurantes
Ginásios
Parque
Cafés
Mobilidade para todos
Características
REF 96
131.30 m2 Área Útil total
2 WC
Classe Energética

Localização:
Av. João Paulo II, nº 301 Fração G
4750-304 Barcelos
Display external content from Google Maps.
Display external content from Google Maps.






